众力资讯网

漂亮!城市新中心再添新盘!长衡·四季隐秀破冰!

眉山市规划和自然资源局关于长衡·四季隐秀住宅小区规划设计方案批前公示眉山市云境房地产开发有限公司拟在至江路与青衣北街交叉

眉山市规划和自然资源局

关于长衡·四季隐秀住宅小区规划设计方案批前公示

眉山市云境房地产开发有限公司拟在至江路与青衣北街交叉口东南侧建设长衡·四季隐秀住宅小区,该项目规划设计方案已通过市规委会专委会审查和市规委会办公室联席会审议。

为保证规划的公开、透明,根据有关规定,现对该方案进行批前公示,公示期自2025年7月16日至2025年7月24日,共7个工作日。如有意见和建议,请在公示期内以书面意见形式向我局反映(署真实姓名、联系方式)。

通讯地址:眉山市规划和自然资源局城市建筑规划管理科(眉山市东坡区眉州大道东二段5号)

联系电话:028—38195962

附 件:长衡·四季隐秀住宅小区规划设计方案总平图及鸟瞰图

眉山市规划和自然资源局

2025年7月16日

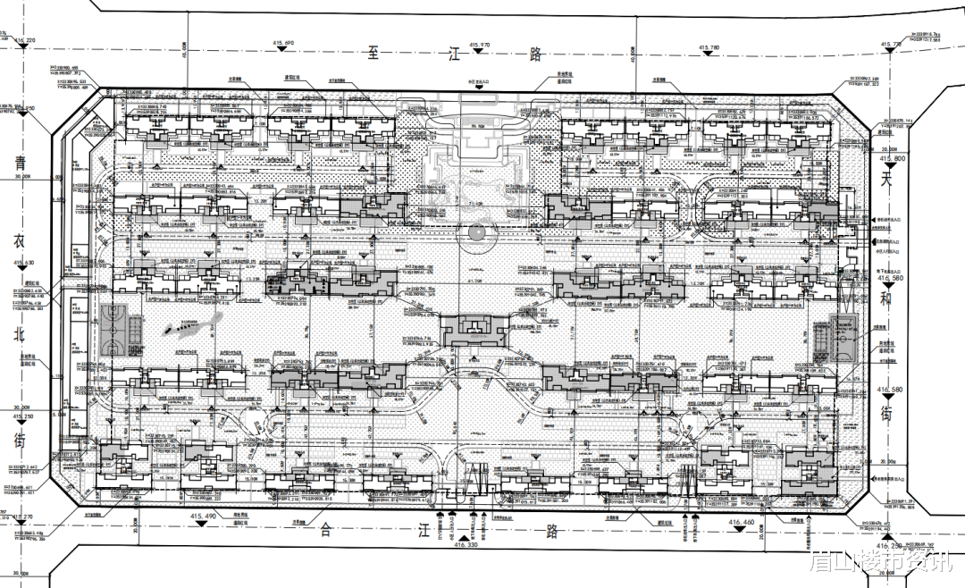
总平面图。

彩色总平图。

指标表。

项目位置图。

鸟瞰图。