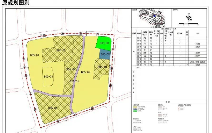
近日,上海浦东高桥镇一处规划局部调整获批,新增住宅用地来满足安置住房需求。 这个调整针对PD-03单元B05街坊,范围从草高支路到花山路、张杨北路和同港路,总面积约19.11公顷。原先的两块地,B05-01和B05-03,现在合并成一块新地块,面积达到4.49公顷,性质定为三类住宅组团用地。这样的合并,能更好地盘活闲置土地资源,避免碎片化使用。 新地块的容积率定在2.5,建筑限高60米,总建筑面积约11.23万平方米。里面还加了两处社区设施:一个100平方米的文化活动室和一个200平方米的老年活动室,都要临街摆放,居民出门就能用上。这点设计挺贴心,考虑到高桥镇周边已有的建成住宅,规划边界也相应微调了。 另外,原先的B05-05交通广场用地,因为权属和现状限制,改成虚线控制形式,通道宽度没变,保持灵活性。看最近上海土地市场数据,浦东住宅用地供应量在稳步回升,2024年已批出多块类似安置项目用地,总量超预期20%。这种调整不光回应军队住房刚需,还优化了存量土地效率。 从长远这类规划变动反映出城市管理正往精细化方向走,平衡了开发速度和民生配套,避免了盲目扩张带来的拥挤问题。浦东作为自贸区核心,高桥镇的住宅注入,能稳住区域人口流动,但关键在于后续执行,确保设施真正落地惠民,而不是纸上谈兵。


