众力资讯网

迪拜奢华地标!全球首个布加迪公寓,施工初具规模

在迪拜繁华的商务港区域,一座以布加迪为名的高层住宅楼正拔地而起。这是法国传奇跑车品牌布加迪与当地开发商Binghatti

在迪拜繁华的商务港区域,一座以布加迪为名的高层住宅楼正拔地而起。这是法国传奇跑车品牌布加迪与当地开发商Binghatti合作的结晶,也是全球首个以布加迪命名的住宅项目。目前,塔楼已建至20余层,预计2026年年底正式落成。

迪拜布加迪公寓施工实景图

迪拜布加迪公寓施工实景图

迪拜布加迪公寓施工实景图

布加迪公寓(Bugatti Residences)项目坐落于被誉为“迪拜曼哈顿”的商务港,紧邻迪拜运河,步行几分钟就能抵达迪拜购物中心和世界第一高楼哈利法塔。主干道谢赫扎耶德路近在咫尺,让出行变得极为便捷。这一带汇聚了高端住宅、商业与休闲场所,布加迪公寓的进驻,无疑为这片区域再添一抹奢华色彩。

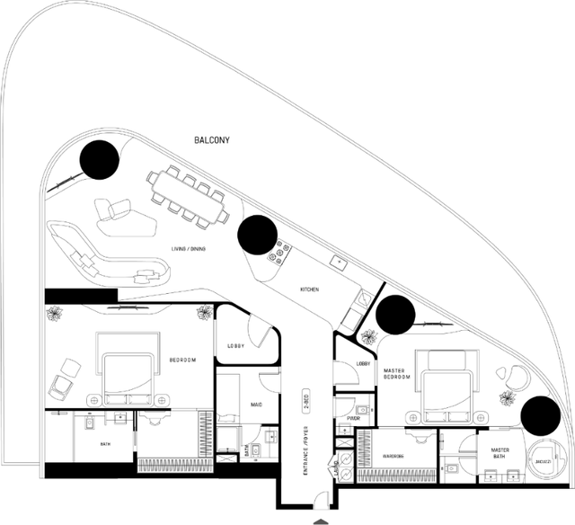
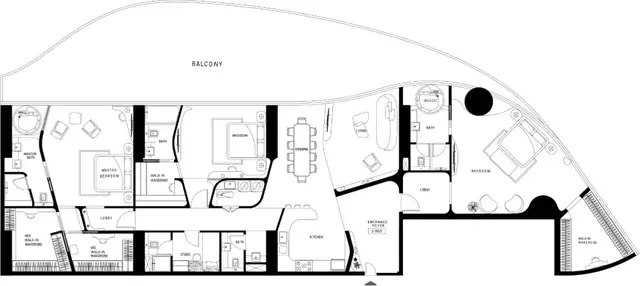
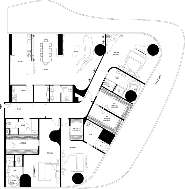
整栋建筑共42层,容纳182套住宅,涵盖两居室到四居室的不同户型。每一户都以法国蓝色海岸的地名命名,如戛纳、圣特罗佩,悄然唤起南法的浪漫气息。

建筑轮廓从法国里维埃拉的海岸线与迪拜沙丘中汲取灵感,外观动感流畅,阳台如丝带般环绕楼体,呼应了布加迪跑车特有的流线造型。

室内设计同样延续品牌基因,不仅选用顶级装饰与家具,更巧妙融入汽车主题元素:灯具模拟车灯造型,家具线条流畅如车身,艺术画作中亦可见跑车踪影。最特别的是,部分顶层公寓配有专属汽车电梯,业主可将爱车直接停入家中,实现“车与家”的无缝连接。

此外,大楼还规划了一系列高端配套设施,包括水疗中心、会员俱乐部、设备先进的健身房等。位于高区的游泳池错落分布,不仅成为建筑视觉焦点,也让居民在畅游间尽览城市天际。

迪拜向来以极致奢华与大胆建筑闻名,布加迪公寓的诞生,不仅是居住空间的升级,更试图将一种与品牌共鸣的生活态度,植入这座永远在超越想象的城市之中。

布加迪公寓户型与售价

两居室 / 188平米 / 1909万迪拉姆

三居室/188平米/3920万迪拉姆

四居室/640平米/5200万迪拉姆

空中豪华公寓/920平米/1.5亿迪拉姆

1 阿联酋迪拉姆 ≈ 1.9386 人民币

(2025年10月3日汇率)

你对该建筑的设计作何评价?

欢迎留言评论区!

评论列表

八面玲珑面面俱到
八面玲珑面面俱到 2
2025-10-09 16:14
又是一个电信诈骗的天堂啊