众力资讯网

148㎡现代简约,90后女神的精装房,改成简洁舒适的家

这套房子的主人是一位90后,在忙碌的工作背后,她希望能有一个简洁温馨的家,在这套现代简约风格的设计里,整体设计简洁舒适为

这套房子的主人是一位90后,在忙碌的工作背后,她希望能有一个简洁温馨的家,在这套现代简约风格的设计里,整体设计简洁舒适为主,把精装房改造成一个充满实用与轻松的氛围感。

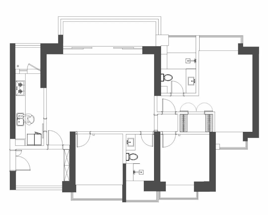
户型图

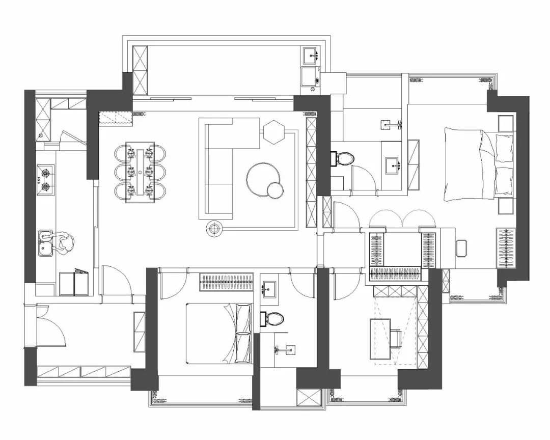
平面布置图

玄关

▲玄关是个独立的入户花园,整体雅白的地面+浅灰色墙面空间,一个端景台+一幅大面装饰画,靠窗一排矮柜鞋柜,底部也做了留空,墙面还悬挂了一面全身镜,整体空间利用得精致而舒适。

客厅

▲电视墙以定制柜作为主体,左侧加入了几个黑色的开放格架,摆上雅致的装饰品,让空间显得现代优雅而大气。

▲素色鲜艳的地毯,布置上碗状的茶几,还有一张灰色布艺沙发,也让空间显得更加华丽优雅。

▲茶几上粉色的花瓶布置,也让空间显得更加温馨舒适。

餐厅

▲餐厅与客厅横厅的格局,餐桌就布置在沙发后方,整体空间宽敞而舒适。

▲大理石台面的餐桌,搭配皮艺的餐椅,整体空间显得格外的优雅华丽。

▲餐桌上的花瓶、餐盘布置,也使得空间显得精致而华丽。

厨房

▲一字型的长条厨房,从洗菜备餐→切菜→炒菜这样线条型的动线,带来了一个宽敞舒适的空间,让家人可以同时立身厨房准备晚宴。

卧室

▲卧室整体现代简洁的空间,灰蓝色的的空间感,地面是马赛克地毯,让空间充满了安静舒心的氛围感。

▲床尾墙面贴了灰白调的墙纸,在蓝灰色的斗柜上摆着黑白调的装饰画,还有一盏轻奢的的台灯。

主卧

▲卧室床头墙以灰色+白色硬包的背景墙,结合一张灰绿色布艺靠背床,床头柜的精致小摆饰,都让空间显得格外的华丽情趣。

▲卧室里的梳妆台兼书桌,旁边飘窗侧也装了开放收纳架,让空间利用更加彻底。

▲主人独享的衣帽间,以开放的柜体,常换的衣物一目了然。

老人房

▲简雅大方的老人房,床头墙与素蓝灰色墙纸,搭配一张布艺靠背的床头,使得空间舒适而轻松。

▲床头的吊灯,也为空间带来独特温馨的画面感。

书房

▲书房的成品书桌,布置,后方一面定制书柜,摆上主人的藏书与展示品,显得档次而端庄。

▲可移动的成品书桌,在需要的时候可以靠墙摆放,然后后方这个隐形床就可以展开了。

▲舒适轻松的空间,为主人提供了实用的办公位置。

卫生间

▲卫生间以做旧质感的灰色墙地面砖,营造出一种独特简约的时尚感。