这套 42㎡现代简约风小户型,通过打破传统隔墙,重塑老宅的机能风尚 —— 简洁利落的空间里,藏着诸多精致设计:设计总监用沟缝设计、灯带及异材质混搭,将点、线、面流畅串联,从玄关异材质屏风起步,以铁件勾勒线条延伸至玄关收纳柜,再用 L 型木质打造置物平台,多元机能一应俱全。天花板线条、灯带、拉门隐性沟缝与电视墙饰条串联视觉,勾勒出深邃开阔又细致温润的人文感;大面积色块与量体的运用,更放大视觉空间,让阳光与温暖流动其中,唤醒生活的感动。
户型图

原始结构图

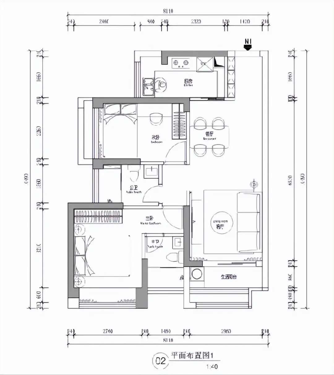
平面布置图
一、户型基础:原始结构焕新,平面布局显巧思从原始结构图到平面布置图,核心改造思路是 “打破隔阂、优化动线”—— 通过调整隔墙位置(如儿童房门移位)、整合功能区,让 42㎡的小空间更显通透,每一处面积都得到高效利用,既满足居住需求,又避免拥挤压抑。
二、玄关:置顶柜体 + 异材质,收纳与颜值双在线
玄关以 “提升收纳 + 拉高视觉” 为核心:
定制置顶收纳柜,不仅大幅增加收纳量,直立式柜体还能纵向延伸视觉,让小空间显得更高挑;
延续整体设计的 “异材质混搭”,从玄关异材质屏风到铁件线条勾勒的收纳柜,再到 L 型木质置物平台,功能与美学结合,进门就能感受到空间的精致感。
三、客厅:细节藏巧思,实用与氛围兼顾
客厅设计兼顾 “视觉放大” 与 “日常实用”,处处是贴心考量:
电视墙与收纳:电视墙用横纹大理石大面积铺陈,避免零碎感,搭配直立展示柜丰富层次,既显高级,又能展示小物件;

墙面材质与灵活装饰:考虑到家中有幼童,沙发背墙选用珪藻土 —— 这种材质能调节湿度、防发霉,还能吸附分解甲醛与异味,环保又实用;墙面无多余缀饰,只装挂画轨道,可随时更换画作,轻松改变空间氛围;

视觉延伸与空间放大:珪藻土从客厅延伸至餐厅、廊道、卧室,串联起全屋空间;再利用百叶窗帘的横向叶片、沙发背墙与大理石的线性纹路,横向拓宽视觉,让小客厅显得更开阔;

儿童房与卧榻整合:将原本在角落的儿童房门移至电视墙旁,靠窗处规划卧榻(兼做收纳),既优化了动线,又多了一处休闲与储物空间,不浪费每一寸面积。


餐厅坪数不大、家庭成员不多,设计师针对性规划折叠式餐桌 —— 日常使用小巧不占空间,客人来访时打开,桌面面积翻倍,轻松应对多人用餐需求,灵活又实用。


儿童房设计聚焦 “收纳” 与 “风水优化”:
床头配置收纳柜,不仅补足小坪数家庭的储物需求,还巧妙化解了 “梁压床” 的不良风水,一举两得。
六、其他细节:梁下空间利用 + 卧室巧设计
设计师不放过任何一处可利用的空间,让实用感拉满:
梁下空间收纳:善用床尾的梁下区域,在电视墙后方规划衣物收纳柜,精准利用 “死角”,增加全屋收纳量;

卧室简约设计:床边放简易桌面替代传统床头柜,节省空间;床头墙装造型灯具,为简约的卧室增添趣味性,避免单调。