
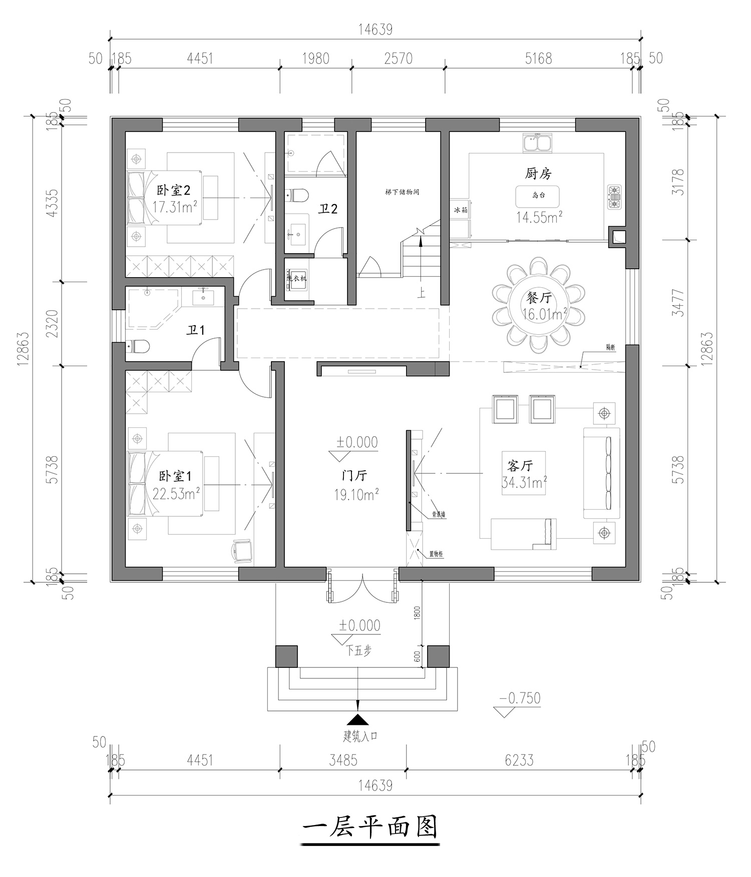
也有人说卧室越大不就会显得越大气,越舒适吗。其实这样的想法也是对的,但是小编觉得合适的布局,合适的面积才会让人居住的更加舒适。

根据乡住网、小住、易盖房、盖房网搜集的不同地域,不同人群的设计案例,总结的卧室过大或过小的弊端。
过大的弊端(超过20-25㎡)
1、缺乏温馨感与安全感 —— 空间空旷显得冷清,不利于睡眠氛围
2、浪费建筑成本 —— 每增加1㎡,造价增加2000-4000元
3、能耗增加 —— 冬季取暖、夏季降温成本更高,尤其北方地区
4、风水考量 —— 传统观念认为过大不易"聚气",影响居住舒适度
5、家具布置困难 —— 空间比例失调,家具显得小气或难以填满。

过小的弊端(小于10㎡)
1、低于12㎡会增加焦虑风险,活动空间局促
2、无法满足基本家具摆放(床+衣柜+通道)

1. 尺寸比例
1)开间:进深 = 6:4(接近黄金分割1:1.5)
2)推荐比例:3.6米×4.5米(16.2㎡),既方正又实用
2. 净活动空间
1)床与家具间至少预留 0.8-1.2米 通道
2)床尾距墙 ≥1米,方便应急和整理床铺

3. 特殊需求调整
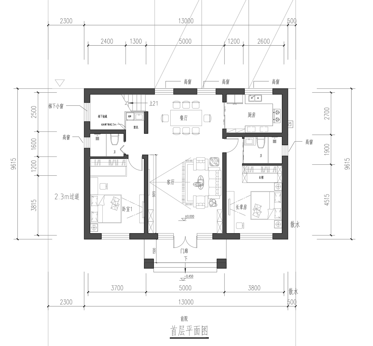
1)长辈房:建议18-22㎡,方便活动及辅助设施
2)带卫生间:主卧增加3-5㎡,保证干湿分离
3)带衣帽间:开间需增至4.2米以上

最终小编做一些总结,卧室不是竞赛谁更大,而是讲究合理实用。3.6米×4.2米的主卧,3.3米×3.6米的次卧,既不会浪费空间,又能保证居住舒适度,这才是经过时间检验的黄金尺寸。
1、普通家庭:主卧15-18㎡,次卧10-12㎡
2、预算充足:主卧可至20㎡(带卫生间),但不宜超过25㎡
3、北方地区:宜取下限尺寸,利于保温节能
4:南方地区:可适当增大,但进深不超过5.5米,保证通风采光
合理的卧室设计应该让每寸空间都利用得恰到好处,这样反而比空洞的大房间更有家的温度。