以前旧家收纳真的很糟糕 很多收纳都是堆砌 也不好拿取使用
所以做柜子设计的时候 反反复复想了好几个方案 怎么收纳胸背和衣服
最后采用了这两个设计 很省钱很实用也比较美观
🚪玄关挂胸背吊柜 P1-2
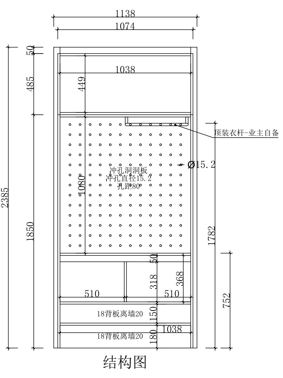
(参考了一个博主的设计 具体设计在图2
-最上面是双门柜 用来放行李箱了和旅游才用的收纳箱
-中间做了洞洞板 可以随便插入隔板、挂杆还有装饰 我就放他的小包和自己的小包
-金属挂杆是自己加的 我们胸背数量不多 最常用的挂在这里就行 挂胸背的衣架是挂帽子的 很方便拿取 回家就挂好
-下面做了两个单门柜 是放捡屎袋、出门可能会要带的杂物
-最底下还有两层鞋架 最实用的鞋架了 因为我们基本只穿一双鞋[笑哭R]和室内鞋隔离
🧺小狗衣服柜 P3-4
这个是抱抱房间的四个双开门柜的其中一个 其他柜子是做了可移动的隔板
左上角我做的是衣柜 其实就是最简单的双开门 里面加了儿童用的榉木挂衣杆
但这个挂衣杆我觉得有点买错了 因为狗衣服比小孩的长 后面一排有遮挡 后期看看要不要换
衣架就是儿童衣架 目前感觉还可以
提到的自己🛒的小物件看P5~
希望能帮到大家 下一期分享下空间分布吧




