本文源自avsforum,内容有部分删减

Patrick一家人在密苏里州斯普林菲尔德新建了一座房子,新房子和影院是同步定制建造的。规划和设计时间在 CEDIA 推出沉浸式音频系统推荐实践(
RP22)之前,但新影院是基于这些设计理念的。”《2023年最新CEDIA CTA-RP22沉浸式音频设计规范手册免费下载》
《家庭影院设计新巅峰,CEDIA 2022最佳影院决赛案例》
复合材料建筑混凝土基础建筑材料。能够从一开始就建造一个符合自己需求精确规格的混凝土建筑,这真是太好了。
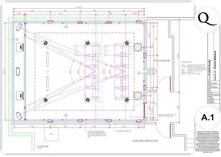
“我想要更多的座位,可以容纳更多的家人和朋友。我还必须确保没有座位离墙壁或扬声器太近。两排五座非常适合这个空间,并且在幕布和前排座位之间有足够的空间。”

木地板地板复合材料天花板,框架定义了这个空间,它相当大!

“另一个重点是升级音频和视频。对于音频来说,更大的房间意味着我们可以安装更多的扬声器声道,以获得更沉浸式的体验,并能够重现剧院般的空间感,尽管比大多数商业影院更清晰、更细致。我还希望在低频上有更多的冲击力,且不会失真。实现这一切的方法是使用 Trinnov 环绕声处理器。”
木地板地板天花板横梁,在这里你可以看到大部分扬声器的位置。

“在视频方面,更大的房间意味着需要更大的屏幕,这需要一个能够照亮它的投影仪,但我又不希望黑色表现受到影响。考虑到屏幕尺寸和预算,JVC DLA-NZ9 是一个合理的选择。”
墙壁木地板地板木材天花板,所有墙壁和天花板都安装了龙骨通道,以隔离石膏板与框架。

“声音隔离和专用暖通空调是必须的,新房间被设计为一个‘房中房’,以最大化声音隔离和隔音效果。影院的专用暖通空调进一步帮助控制温度,并防止声音泄漏到房子的其他区域。”
木地板地板天花板木板,大台阶正在成型。

“美学和颜色是另一个因素。我想要一个模仿 IMAX 感觉的空间。目标是将扬声器隐藏在织物后面,包括云状天花板,并设置一个投影机房来放置设备。这有助于消除任何可能让人分心的元素。此外,为了增强对比度,我们在靠近屏幕的地方使用了深色。我们最终选择的颜色是对初代 NES 主机的致敬:黑色和炭灰色,搭配红色装饰。”
墙壁地板地板木材天花板,墙壁和天花板将被覆盖上声学透明织物,并固定在斜边轨道系统上。

“Shawn Byrne(@SierraMikeBravo)和 Sharon Faier 在 Quest Acoustical Interiors 设计了影院,QuestAI 总裁 Gerry Lemay(@AudioGuru)进行了预建声学分析。总承包商是密苏里州西南部的当地定制建筑商 Mark Martin。Creative Audio 负责整个房子的布线和预埋,以及 Control4 编程,Adam Pelz(@appelz)进行了音频和视频校准。”
地板地板复合材料瓷砖瓷砖地板,这是侧面墙壁上的声学处理;所有声学处理均由 QuestAI 提供。

“除了‘房中房’设计外,我们还在天花板横梁和所有墙壁之间使用了双层 5/8 英寸(约 1.59 厘米)的石膏板,并在其中加入 Green Glue,使用 IB-1 剪力钉和龙骨通道用于墙壁和天花板,在所有空腔中填充 R19 保温材料,安装悬浮地板,在舞台上使用沙子和锯末的混合物,并为影院和投影机房配备了带有柔性风管的专用暖通空调单元,用于供应和回风。”
木地板地板电子设备技术,屏幕墙和天花板也进行了声学处理。

Patrick 自己做了很多工作。“建造和安装扬声器背板箱非常有趣,甚至有些治愈。使用美工刀切割和安装声学处理材料有些繁琐。由于工具有限且需要纠正错误,这花了我 25 个小时。将织物安装到轨道中几乎快让我暴躁,因为一些区域,比如房间的四个角落以及墙壁与天花板相接的地方,由于空间狭小,非常棘手。幸运的是,木工让我借用了他们的脚手架来安装云状天花板,我的妻子和儿子也帮忙完成了这部分工作。织物安装花了大约 55 个小时。我还组装了机架并连接了所有设备。”
将织物安装到墙壁中是整个建造过程中最困难的任务之一。

当然,Patrick 在建造过程中遇到了一些挑战。“预算是一个很大的挑战;一个大房间需要更多的材料、劳动力和设备,所有这些都会大幅增加成本。通过货比三家和谈判,我为影院设备节省了约 35% 的成本,但我无法对建筑和劳动力也这样做。
“我的建筑商和我之前都没有做过云状天花板,因此在工程设计和思考使用什么材料方面花了一些功夫。将织物安装到轨道中是建造过程中最困难的部分;我再也不想做一个覆盖织物的房间了!虽然看起来很棒,但过程非常繁琐。”
前屏幕墙除了 Ascendo LCR 扬声器外,还配备了两台低音炮。

然后是那些一切就绪的时刻。“我记得在屏幕框架完成后第一次走进房间时,我在想,‘这是合适的尺寸吗?它看起来很大,但也很棒!’在 Adam 完成第一天的校准后,我打开了系统。当我听到熟悉的音频内容时,我从未以这种方式听过,即使是我们的上一个影院也没有!甚至连我的妻子也评论说声音听起来更清晰了,尤其是对话。”
台阶后部还隐藏了两台低音炮,由金属格栅覆盖。之前还讨论过地面声道的问题,看来超低频这块已经有人在玩了:《未来会出现“地面声道”吗?家庭影院3D空间音效技术探讨》。

“在完成校准后体验影院是一种启示。我在建造讨论区详细记录了这一点,但其中一个亮点是在两声道模式下听到系统的声音。一切听起来都非常立体和逼真,仿佛我就在录制音乐的房间里和音乐家们在一起。然后,释放影院的全部潜力,通过所有声道播放内容,让我起了一身鸡皮疙瘩。每次我们看电影或玩游戏时,我都会想,‘这是一种如此超现实的体验,我们能处于这个位置真是太幸运了。’”
设备机架令人印象深刻,所有设备都由 Torus Power BAL 电源系统(R)供电。

Patrick 的房间有一些不寻常的元素。“影院比地下室的其他部分低 0.6 米,以达到所需的天花板高度。原计划是低 0.9 米,但当你遇到大量需要破碎机才能处理的石灰岩时,你必须在某处妥协!”
“为了创建低音阵列但又隐藏扬声器,后部低音炮被放置在台阶后部,并由金属格栅覆盖。此外,织物轨道是斜边的而不是平齐的;我喜欢这种设计在房间周围创造的 3D 效果。

“通常,墙壁上的 LED 灯会从地板延伸到天花板,但我不想这样,因此我不得不想办法让 LED 灯与织物轨道兼容。轨道是斜边的事实进一步增加了难度。在与织物轨道公司多次碰壁后,我开始起草一种方法,使其能够在推荐的最佳实践范围内实现,包括最小厚度和部件长度。木工根据设计切割和安装,最终效果看起来非常好!”
Patrick 实现了他想要的两排共十个座位,并且周围有足够的空间。

正如你可能想象的那样,如此壮观的影院并不便宜。“所有设备的建议零售价为 25 万美元,但我最终以大约 15.5 万美元的价格购得。建筑和人工额外花费了 4 万到 4.5 万美元。”
前排座位是 Seatcraft Diamante FX 可躺式座椅,带有可伸缩头枕,而后排则包括五把 HT Design Waveland 可躺式座椅。

也许并不令人惊讶,Patrick 决定将这个影院命名为《终局之战》。“这不是漫威的引用,而是出于两个原因的文字游戏。首先,这些设备对我们来说是‘终极’的。其次,我是一个游戏玩家,这个设计让我想起了视频游戏中的东西。颜色是对初代 NES 的致敬。”
享受时刻!
很难想象 Patrick 能够超越《原力影院》,但他显然做到了,精彩!

设备清单:
信号源
Oppo UDP-203 UHD 蓝光播放器
Amazon Fire Cube 流媒体设备
Sony PlayStation 5 游戏主机
Nintendo Switch 游戏主机
AV 器材
Trinnov Altitude 16 环绕声处理器
Topping E50 平衡 DAC(2 个)
QSC Core 110f 音频控制处理器
QSC DCA 2422 2 声道功放(2 个,LCR)
QSC DCA 1644 4 声道功放(4 个,环绕声和顶部)
JTR SP2-8000-HT 2 声道功放(前置低音炮)
JTR SP2-4800-HT 2 声道功放(后置低音炮)
MadVR Envy Extreme MK1 3080 视频处理器
投影仪
JVC DLA-NZ9
Panamorph DCR+XM2 变形镜头
幕布
Stewart Filmscreen StudioTek 130 G4(宽 4.57 米,2.35:1,打孔透声幕,增益 1.3)
扬声器(13.4.6)
Ascendo The 12 无源挂墙式(3 个,LCR)
Ascendo The 6 无源挂墙式(6 个,环绕声)
Ascendo The 6 无源楔形 30°(10 个,环绕声和顶部)
JTR Captivator RS2 低音炮(2 个,前置,外接功放版本)
JTR Captivator RS1 低音炮(2 个,位于台阶内,外接功放版本)
线材
Tributaries
Mogami Gold XLR
控制
Control4
电源调节
Torus Power WM 100 BAL 电源分配器
Wattbox UPS IPVM-12 2000 不间断电源调节器
声学处理
QuestAI Q-Trap
QuestAI Q-Excel
QuestAI Q-Flector
QuestAI Q-Fractor Plus
QuestAI Q-Perf
QuestAI Q-DAR
Guilford of Maine Anchorage 织物
座椅
Seatcraft Diamante FX(前排 5 个)
HT Design Waveland(后排 5 个)
房间尺寸
长 8.38 米 × 宽 6.4 米 × 高 3.18 米(长 × 宽 × 高)
座位距离(从每排中心到屏幕的距离)
第一排:4.42 米
第二排:6.25 米
家庭影院网相关资料:
《影音室装修声学设计怎么搞?装修完再看就晚了》
《家庭影院装修容易忽略的几个大问题!》
《家庭影院水有多深?商家坑人套路大揭密》
《家庭影院新手小白必踩的那些坑,你遇到了么?》
《功放音箱厂家那些忽悠人的套路大揭秘》
《家庭影院避坑系列专题攻略》
《家庭影院从入门到精通》